HICAD/DRAFT for Windows 入門編

[目次][索引][前へ][次へ]

5.1 この章のはじめに

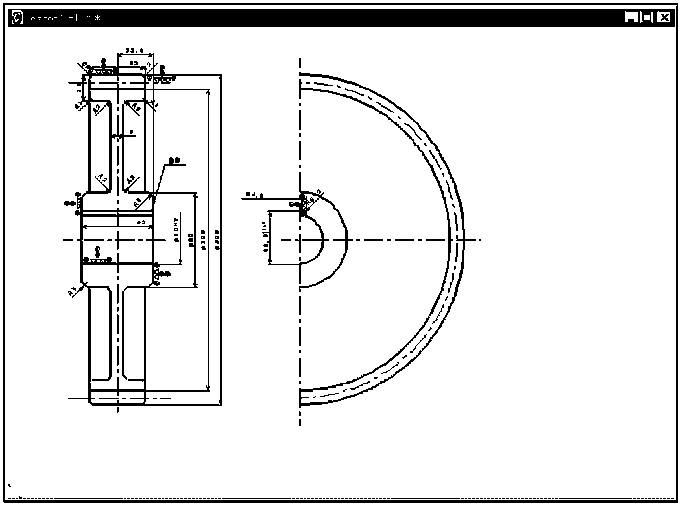
■例題の説明
次に示す寸法を記入します。
[図データ]

■使用する機能
この章では,次に示す機能の操作を練習していきます。なお,各機能の詳細については,マニュアル「製図システム HICAD/DRAFT for Windows 使用の手引」,および「製図システム HICAD/DRAFT for Windows コマンド編」を参照してください。
  • [図データ](図面ファイルオープン):パーソナルコンピュータ上にある図面を広げます。
  • [図データ](2点間寸法):2点間の寸法を指定した位置に記入します。
  • [図データ](ウィンドウ拡大):指定した領域を拡大して表示します。
  • [図データ](ウィンドウ標準):ウィンドウの拡大,縮小,移動などの操作をした図面を標準の表示状態に戻します。
  • [図データ](オブジェクトモード):図面上で選択した要素に対して,ポップアップメニューでの操作やトラッカーでの修正をします。
  • [図データ](寸法文字列追加):寸法の値の前,または後ろに文字列を追加します。
  • [図データ](角寸法):角を削ったり,丸めたりした個所に寸法を記入します。
  • [図データ](片矢印寸法):片方だけに矢印がある寸法を記入します。
  • [図データ](注記寸法):注記を寸法の形式で記入します。
  • [図データ](公差編集):寸法の値に上限公差と下限公差を記入します。
  • [図データ](要素上仕上記号):指定した位置に仕上記号を記入します。
  • 図面保管:パーソナルコンピュータ上に図面を保管します。